Fenster schließen

Zentraler Kontakt

Heidelbergstraße 7
07554 Korbußen/b. Gera
Tel.: 036602-141 0
Fax: 036602-141 41

Zentraler Ansprechpartner:
Frau Franziska Mittag
info@trigis.de

GEGENWART ERFASSEN - ZUKUNFT GESTALTEN

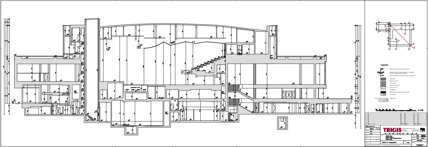
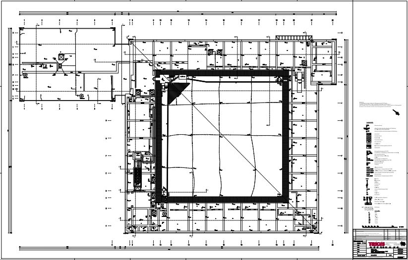
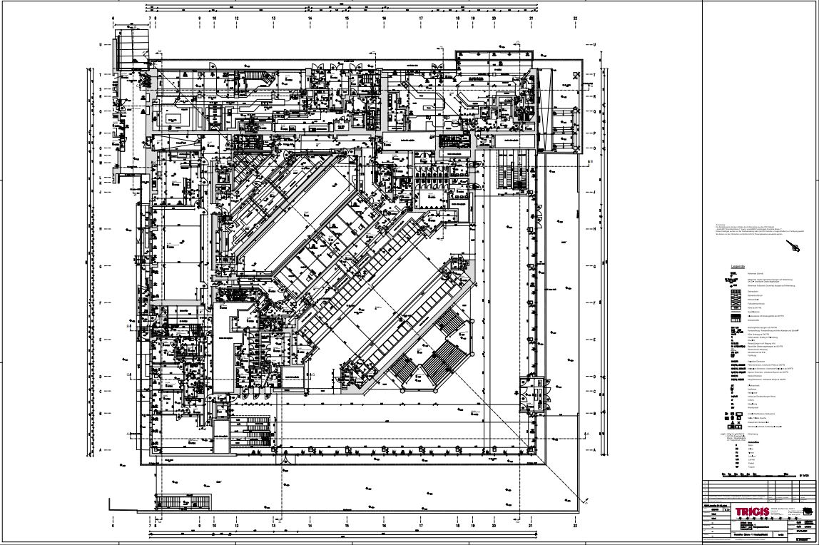
Gera, Kultur- und Kongresszentrum

Das Kultur- und Kongresszentrum in Gera wurde 1981 eröffnet. Es gilt mit dem großen Saal sowie mehreren Konferenzräume als wichtiger Veranstaltungs- und Tagungsort in Ostthüringen.

Aufgabenstellung

Im Zuge anstehender Planungen zur Sanierung des Kultur- und Kongresszentrums in Gera galt es, mit dem Gebäudeaufmaß eine aktuelle, korrekte und verlässliche Grundlage zu schaffen.

Leistungen

  • Vollständige Erfassung mittels 3D Laserscan
  • Erfassung von außen mittels Vermessungs-UAV-Bildflügen
  • Auswertung einer Gesamtpunktwolke
  • Herstellung von Grundriss-, Schnitt- und Ansichtszeichnungen

Galerie

TRIGIS - DIE WELT DER GEODATEN